Oasis Fountain
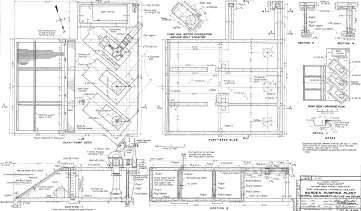
This fountain is made from a split case centrifugal pump, which was installed by the United States Bureau of Reclamation in 1954 in Block 44 of the Columbia Basin Project.
It was one of several pumps installed at the Warden Pumping Plant, which pumps water from the East Low Canal into a canal that delivers irrigation water to 6,400 acres lying west and south of Warden, WA. The pump was driven by a 400 horsepower electric motor.
In operation the pump's spinning impeller drew water up from a concrete sump below and discharged the water into a pipeline leading to a canal above.
In 2008 the East Columbia Basin Irrigation District removed this pump after 54 years of faithful service. The District rebuilt the Warden Pumping Plant as part of the District’s Pump Modernization Plan.
Saved from the scrapyard, the pump now serves as a reminder of the post-World War II American spirit and engineering that fueled construction of the Columbia Basin Project.
Here's a time lapse photo gallery of the project:


















